vendu

Maison 3CH neuve à Lontzen – LOT 2

Limburger Strasse - 4710 Lontzen

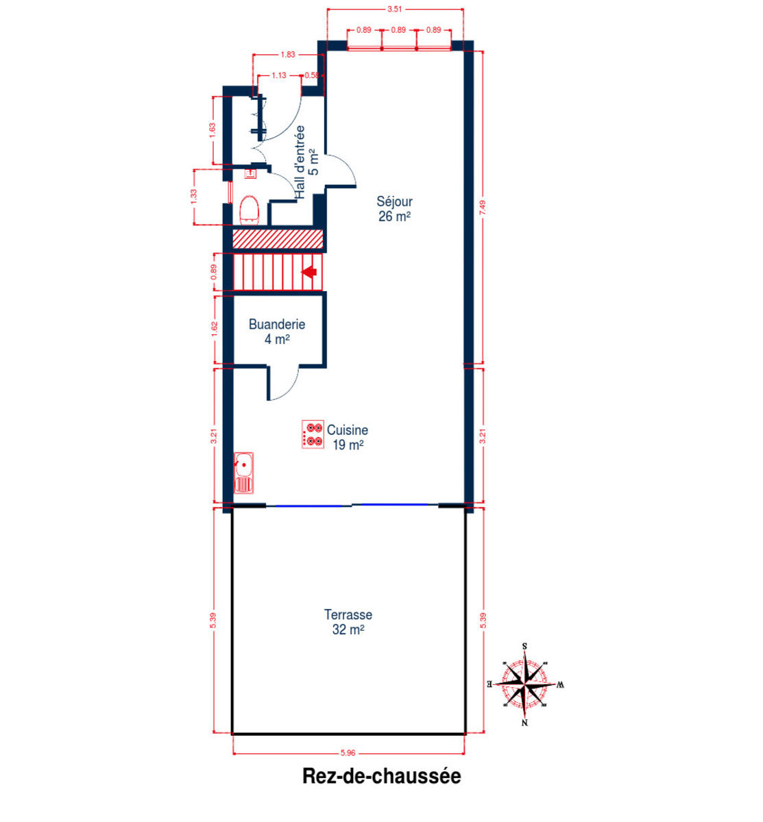
Surface habitable: 170m2

Surface terrain: 341.5m2

Jardin: Oui

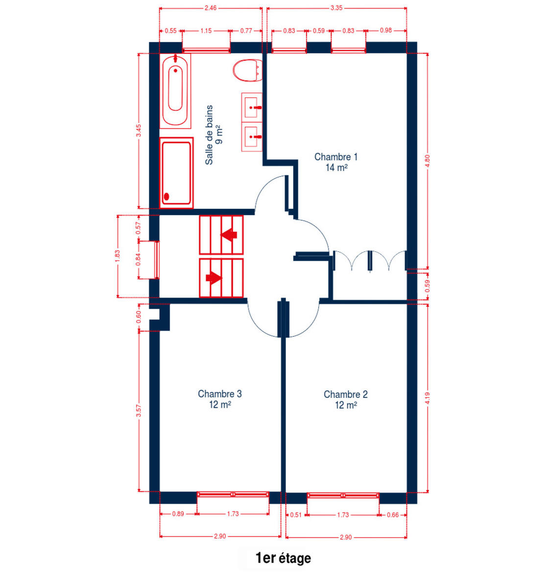
Chambres: 3

Salles de bains: 1

Description

Situées dans un cadre champêtre à proximité de toutes les commodités et de la ville d’Aix-la-Chapelle, découvrez ces maisons 3 façades neuves et prêtes à vivre. Dotées des meilleures finitions, chaque habitation dispose d’une grand séjour lumineux, d’une cuisine haut de gamme full-équipée, de 3 belles chambres (certaines, avec placards encastrés) et d’une spacieuse salle de bain avec douche à l’italienne et baignoire. A l’extérieur, vous découvrirez une terrasse en pierres bleues, un joli jardin aménagé donnant sur la campagne environnante et un emplacement de parking privatif (le lot 2 dispose d’un double carport). Pompe à chaleur, panneaux photovoltaïques, citerne d’eau de 10.000 litres, chauffage sol au rez, excellents matériaux : ces habitations à l’ossature bois présentent tous les avantages et disposent d’un excellente isolation (PEB A++ escompté). Découvrez-les sans plus tarder : contactez l’agence My Place Immo au 0479 983 683.

icon VR
Visite virtuelle

Détails

Général

Etat
Neuf
Année de construction
2022
Chauffage
chauffage au sol
Double vitrage
Oui

Intérieur

Surface chambre 1
11 m2
Surface chambre 2
11.5 m2
Surface chambre 3
11.5 m2
Surface chambre 4
24.5 m2
Surface cuisine
19.3 m2
Surface séjour
37.5 m2

Extérieur

Jardin
Oui
Surface terrasse
39 m2